


No packages. No fluff.
OnlyPlans.
No packages. No fluff.
OnlyPlans.
No packages. No fluff.
OnlyPlans.
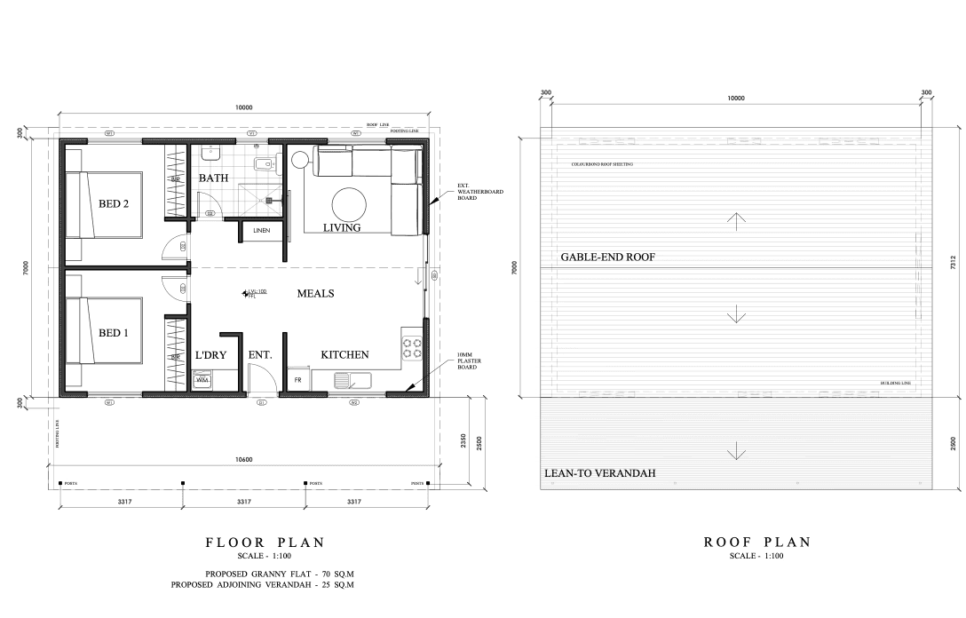
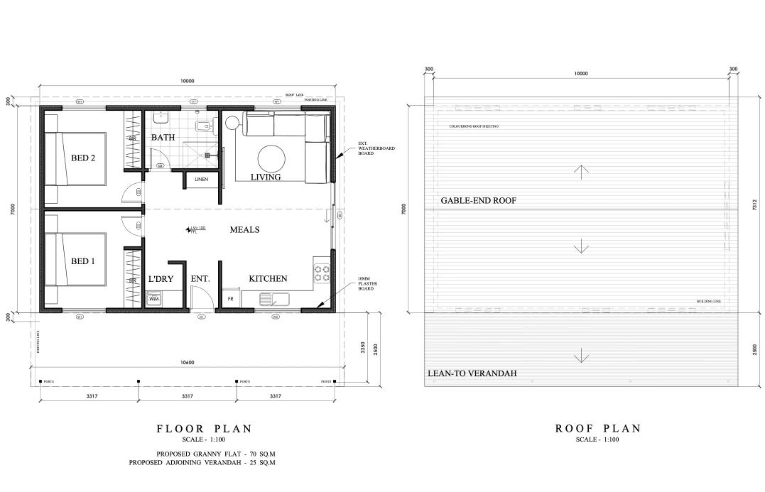
Councils require clear, scaled drawings for approval, without them, progress stalls. We deliver precise, council-ready plans that keep your project moving.
Councils require clear, scaled drawings for approval, without them, progress stalls. We deliver precise, council-ready plans that keep your project moving.
Councils require clear, scaled drawings for approval, without them, progress stalls. We deliver precise, council-ready plans that keep your project moving.
Councils require clear, scaled drawings for approval, without them, progress stalls. We deliver precise, council-ready plans that keep your project moving.
Already have a flat-pack structure?
OnlyPlans prepares council-ready site plans, elevations, and supporting drawings for sheds, carports, verandahs, and more, even if your supplier didn’t provide them.
Every project begins with the plan. Councils require clear, scaled drawings before approvals can progress—and without them, momentum is lost.
OnlyPlans delivers precise, council-ready site plans that minimize back-and-forth and keep your project moving forward.
Already have a flat-pack structure?
OnlyPlans prepares council-ready site plans, elevations, and supporting drawings for sheds, carports, verandahs, and more, even if your supplier didn’t provide them.
Already have a flat-pack structure?
OnlyPlans prepares council-ready site plans, elevations, and supporting drawings for sheds, carports, verandahs, and more, even if your supplier didn’t provide them.
Explore Our Plans
Explore Our Plans
Explore Our Plans
These plans can be incorporated into your current drawings or carefully customised to align with your requirements.
These plans can be incorporated into your current drawings or carefully customised to align with your requirements.
These plans can be incorporated into your current drawings or carefully customised to align with your requirements.
These plans can be incorporated into your current drawings or carefully customised to align with your requirements.
How OnlyPlans works
How OnlyPlans works
How OnlyPlans works
At DAP Labs, we simplify the entire journey—so you can focus on what matters, while we take care of the details.
At DAP Labs, we simplify the entire journey—so you can focus on what matters, while we take care of the details.
At DAP Labs, we simplify the entire journey—so you can focus on what matters, while we take care of the details.
Start the Conversation
Tell us what you need, & we’ll guide you through the right approach for your space.
Start the Conversation
Tell us what you need, & we’ll guide you through the right approach for your space.
Crafted for you
We craft tailored plans aligned with your inputs, site specifics, & council requirements.
Crafted for you
We craft tailored plans aligned with your inputs, site specifics, & council requirements.
Refined to Perfection
We collaborate with you to review, & ensure every detail meets your expectations.
Refined to Perfection
We collaborate with you to review, & ensure every detail meets your expectations.
Ready for What’s Next
Receive professionally prepared plans, ready for submission, or further development.
Ready for What’s Next
Receive professionally prepared plans, ready for submission, or further development.
Start the Conversation
Tell us what you need, & we’ll guide you through the right approach for your space.
Crafted for you
We craft tailored plans aligned with your inputs, site specifics, & council requirements.
Refined to Perfection
We collaborate with you to review, & ensure every detail meets your expectations.
Ready for What’s Next
Receive professionally prepared plans, ready for submission, or further development.
Start the Conversation
Tell us what you need, & we’ll guide you through the right approach for your space.
Refined to Perfection
We collaborate with you to review, & ensure every detail meets your expectations.
Crafted for you
We craft tailored plans aligned with your inputs, site specifics, & council requirements.
Ready for What’s Next
Receive professionally prepared plans, ready for submission, or further development.
Have questions about OnlyPlans?
Have questions about OnlyPlans?
Do I need Council approval before building or renovating?
Most building work, extensions, land division, verandahs, carports, and new homes require Development Approval before construction. We can review your property and prepare the required drawings and documents for lodgement through the planning portal.
What services do you provide as a design and planning consultancy?
Can you help with PlanSA / Development Application lodgement?
Can you prepare drawings for Council approval only?
How long does it take to get an approval from the Council?
Do you design custom homes or only prepare plans?
Do I need Council approval before building or renovating?
Most building work, extensions, land division, verandahs, carports, and new homes require Development Approval before construction. We can review your property and prepare the required drawings and documents for lodgement through the planning portal.
What services do you provide as a design and planning consultancy?
Can you help with PlanSA / Development Application lodgement?
Can you prepare drawings for Council approval only?
How long does it take to get an approval from the Council?
Do you design custom homes or only prepare plans?
Do I need Council approval before building or renovating?
Most building work, extensions, land division, verandahs, carports, and new homes require Development Approval before construction. We can review your property and prepare the required drawings and documents for lodgement through the planning portal.
What services do you provide as a design and planning consultancy?
Can you help with PlanSA / Development Application lodgement?
Can you prepare drawings for Council approval only?
How long does it take to get an approval from the Council?
Do you design custom homes or only prepare plans?
How OnlyPlans works
At DAP Labs, we simplify the entire journey—so you can focus on what matters, while we take care of the details.
Start the Conversation
Tell us what you need, & we’ll guide you through the right approach for your space.
Crafted for you
We craft tailored plans aligned with your inputs, site specifics, & council requirements.
Refined to Perfection
We collaborate with you to review, and ensure every detail meets your expectations.
Ready for What’s Next
Receive professionally prepared plans, ready for submission, or further development.
Have questions about OnlyPlans?
Do I need Council approval before building or renovating?
Most building work, extensions, land division, verandahs, carports, and new homes require Development Approval before construction. We can review your property and prepare the required drawings and documents for lodgement through the planning portal.







